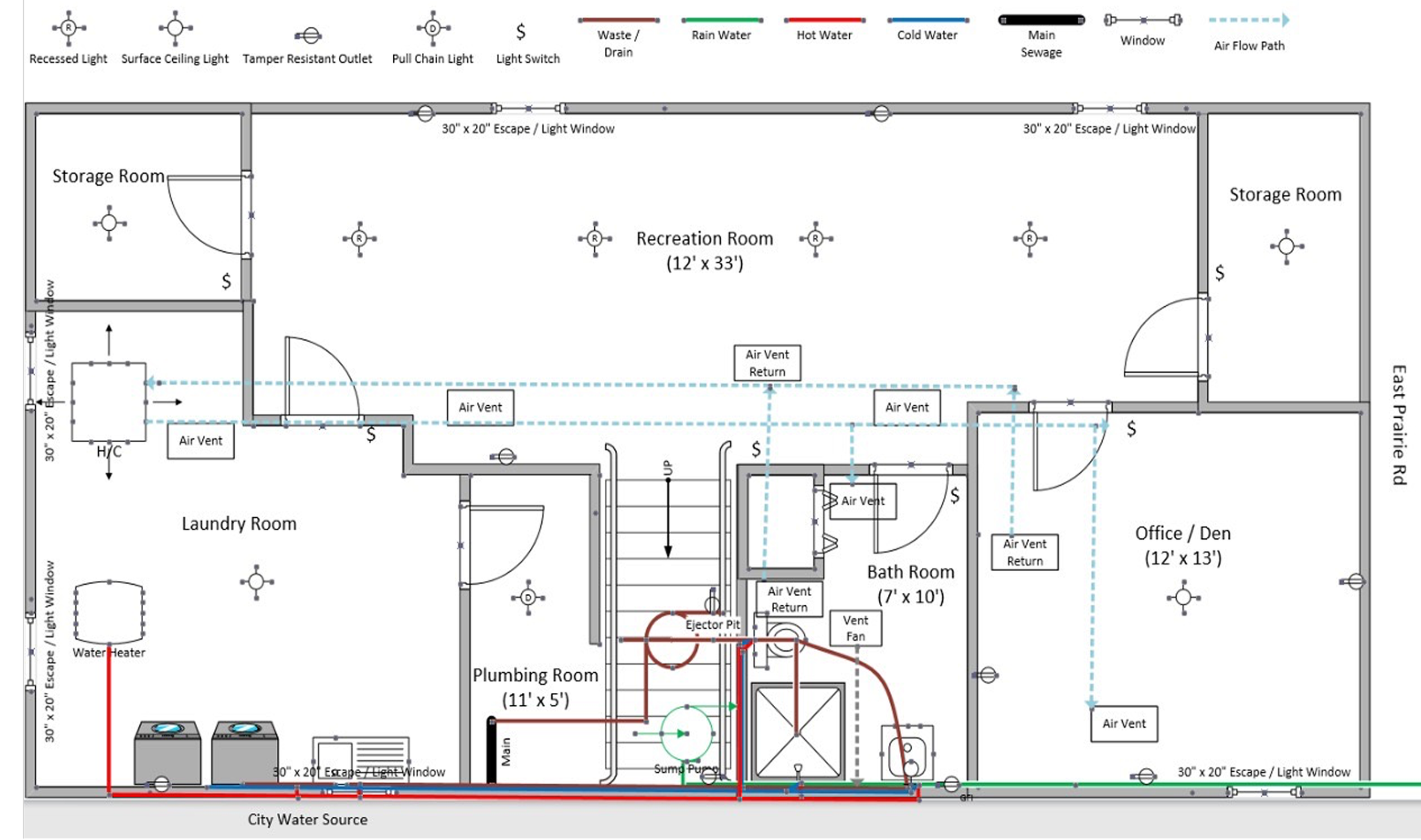
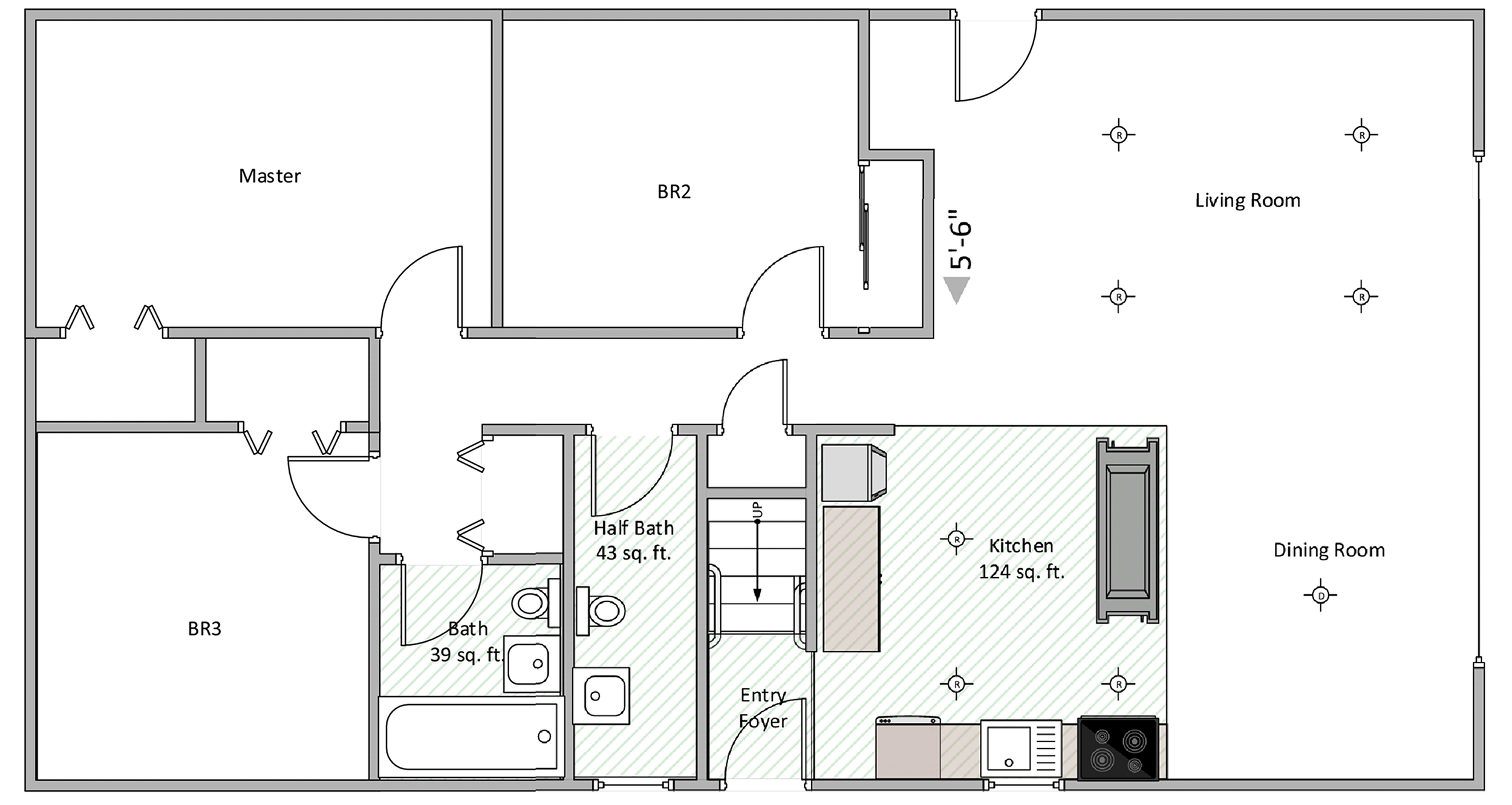
East Prairie

This investment property underwent a complete gut renovation. I was responsible for overseeing
all design aspects, including designing the basement layout, selecting cabinets, countertops,
lighting, paint and stain colors, and much more—all while adhering to a highly constrained budget.